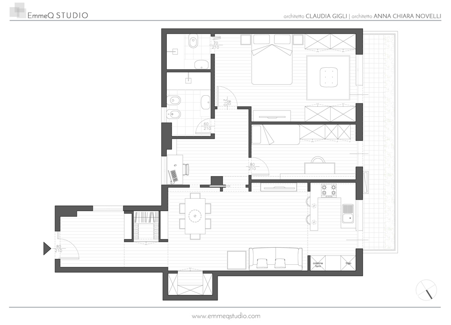
I giovani proprietari di questo appartamento ci hanno contatto per rivedere completamente la distribuzione della loro casa, una abitazione dallo stile tipico degli anni ’70, caratterizzato da ampi ingressi e spazi di disimpegno poco sfruttati.
I committenti hanno espresso la necessità di una seconda camera da letto, e l’intenzione di intervenire il meno possibile sui due bagni, ristrutturati da poco.
La zona giorno, dove adesso trova spazio anche la cucina, si amplia, sfruttando l’ingresso e parte del disimpegno. Quest’ultimo, valorizzato da controsoffitti e vetrate, diviene ora uno spazio vivibile, perfetto come angolo studio della proprietaria.
L’ingresso, grazie ad un gioco di librerie su misura in cartongesso, viene sfruttato al massimo anche come spazio di sevizio e la cucina, la zona pranzo e il soggiorno, pur essendo in unico ambiente trovano ciascuno la propria dimensione.
Lo stile semplice e contemporaneo degli spazi, delle finiture e degli arredi fissi, è lo sfondo ideale per i diversi complementi dallo stile vintage dei proprietari.

