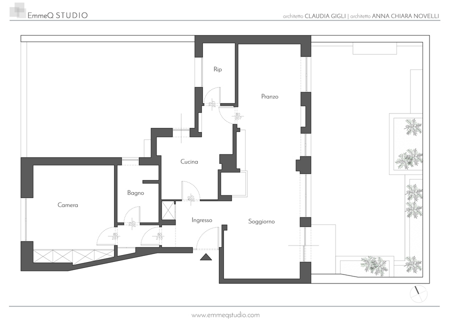
Un appartamento poco luminoso sito al piano seminterrato di una palazzina nel cuore di Roma, uno spazio esterno circondato da alte mura di contenimento e con una superficie complessiva pari a quella interna. Degli annessi pertinenziali condonati da integrare nella progettazione, questa la situazione ante operam di questo intervento.
Le aspettative e le richieste della committenza per questa ristrutturazione hanno rappresentato una sfida: la ristrutturazione è totale e comprende sia la demolizione di tutte le tramezzature interne, sia interventi sui prospetti esterni, al fine di realizzare nuove grandi aperture che permettano una migliore illuminazione degli ambienti. Inoltre, la riorganizzazione degli spazi esterni è totale, fino alla realizzazione di arredi su misura.
Il risultato è di fatto un appartamento completamente diverso da quello che i proprietari hanno acquistato.
L’ante operam aveva una zona giorno lunga e stretta, una camera da letto ed un solo bagno. Nella ristrutturazione è stata ricavata una seconda camera da letto, ed un secondo bagno.
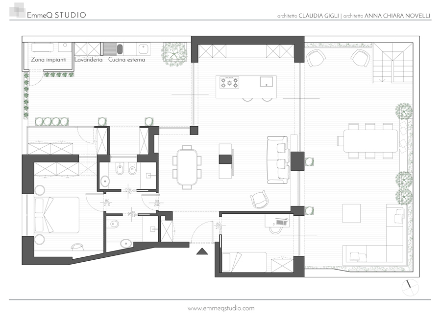
Il post operam è quindi organizzato in una ampia zona giorno con grande cucina con isola, una camera padronale con zona office integrata e cabina armadio, due bagni rivestiti in resina, ed una seconda camera “mimetizzata” in una parete decor rivestita con carta da parati e porta a scomparsa filomuro.
Alla zona notte e servizi si accede attraverso una parete boiserie con porta a scomparsa. Il pilastro centrale dell’appartamento diviene, da semplice elemento strutturale, setto divisorio ed armadio contenitore tra la zona pranzo e la zona salotto.
Tutti gli arredi della casa sono interamente realizzati in falegnameria su disegno degli architetti. La dettagliata personalizzazione degli ambianti ha permesso sfruttare al massimo ogni spazio ottenendo, in una superficie complessiva non particolarmente ampia, diverse zone funzionalmente organizzate; le nuove finestre dilatano lo spazio verso un esterno le cui scelte estetiche e cromatiche e le cui finiture di fatto permettono un prolungamento visivo dello spazio interno; gli arredi esterni, anch’essi realizzati su disegno, consentono di suddividere le diverse aree esterne in base alle diverse esigenze.
Cura del dettaglio, scelte estetiche personalizzate, soluzioni costruttive e tecnologiche avanzate, domotica, riscaldamento a pavimento, studio illuminotecnico, sono solo alcuni degli elementi che caratterizzano questo intervento nella sua complessa interezza.

