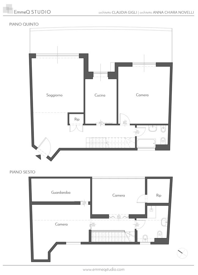
120 mq organizzati su due piano, di cui uno con soffitti spioventi, ed un grande terrazzo.
Queste le caratteristiche di casa EUR, un appartamento che dovrà ospitare una coppia con il loro bambino.
Le necessità della committenza sono quelle di rimodulare lo spazio del piano inferiore al fine di poter ottenere una grande zona open con cucina a vista, uno studio/stanza dei giochi, ed il bagno di servizio.
Al piano superiore resteranno le due camere da letto, il bagno padronale e lo spazio sottotetto.
Demolendo i tramezzi della vecchia cucina, e ridimensionando lo spazio dello studio, si ottiene una grande zona giorno, la cui sensazione di ampiezza è ulteriormente enfatizzata dalle grandi porte finestre che si affacciano sul terrazzo e su una vista aperta.
La zona cucina resta comunque delimitata nel suo spazio separata dal soggiorno grazie ad una penisola, il cui piano in rovere su misura abbraccia la parete, rivestita con carta da parati, proiettata lungo corridoio che porta alla zona servizi ed allo studio.
L’ingresso dell’appartamento viene schermato con un gioco di mensole sospese che prosegue fino a diventare un retrodivano, funzionale per allineare una parete altrimenti inclinata.
Il sottoscala viene recuperato e completamente riorganizzato grazie una soluzione di armadio in falegnameria su misura, ed è sfruttato come lavanderia, ripostiglio e guardaroba.
Al piano superiore, il ballatoio e la camera del bambino sono arredate con soluzioni in cartongesso e carta da parati. La zona sottotetto viene sfruttata come ampio guardaroba, con soluzioni di armadiature in falegnameria su misura. Nel bagno, rivestito in resina, il piano lavabo, la vasca da bagno e mobili sono interamente realizzati su disegno.

